Jaeger Coneco AG Baumanagement

Neubau MFH im Wiesengrund 16

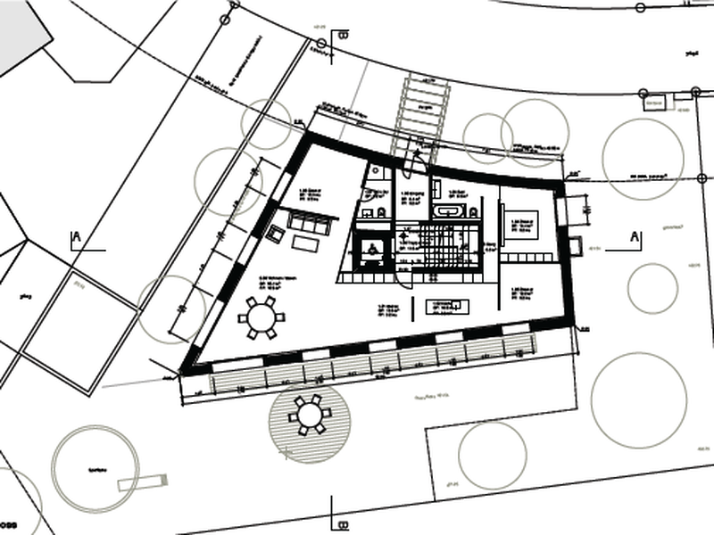
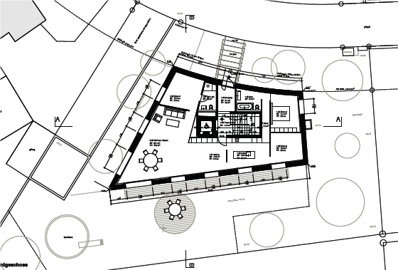
Das Projekt Wiesengrund ist ein schlichter und doch raffinierter, dynamisch und harmonisch in das bestehende Wohnquartier integrierter Neubau. Die vier Wohneinheiten sind um einen zentralen Erschliessungskern (Lift, Treppe, Vertikalleitungen) angeordnet – ein Grundrissprinzip, das durch verschieden ausgerichtete Zonen mit unterschiedlichem Charakter die Nutzungsflexibilität erhöht. Bad und Schlaf- oder Arbeitsräume sind grundsätzlich nach Norden und Osten gerichtet, Wohnraum und Wohnküche öffnen sich nach Westen und Süden.

Der Neubau wurde damals nach dem neuen Schweizer Nullenergie-Standard konzipiert und die Zertifizierung nach den entsprechenden Minergie-A Anforderungen erreicht. Das Projekt erfüllt damit bereits die ab 2020 geltenden EU-Richtlinien 2010/31 und das erste Minergie-A Eco zertifizierte Gebäude im Kanton Zürich.

Standort
Küsnacht
Bauherr
Entrez! Architektur & Immobilien
Architekt
Krayer & Smolenicky Architekten GmbH
Unsere Leistungen
Baumanagement
Bausumme
CHF 6.1 Mio
Fertigstellung
2014

Galerie

Werkliste