Jaeger Coneco AG Baumanagement

Kulturzentrum Uster

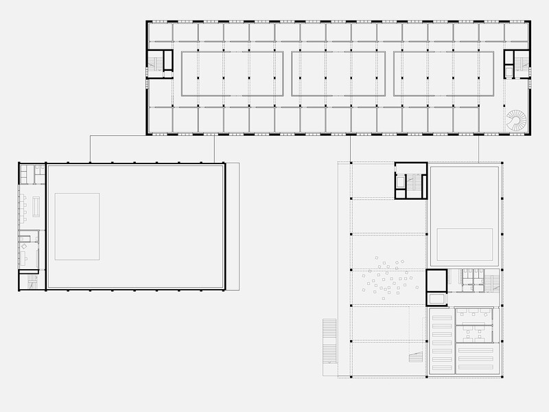
Auf dem Zeughausareal in Uster entsteht ein neuer Kultur- und Veranstaltungsort. Das bestehende Zeughaus wird mit zwei einfachen, in der Grösse und Struktur unterschiedlichen Bauten ergänzt. Der östliche Neubau ist als offene Struktur mit Nachverdichtungspotenzial gedacht, welche dem Nutzer Möglichkeiten zur Aneignung und Flexibilität bietet. Im westlichen Neubau, dem Kultursaal, ist der grosse Veranstaltungssaal untergebracht. Durch die differenzierte Materialisierung der drei Baukörper wird ein abwechslungsreiches Ensemble mit jeweils spezifischen räumlichen Qualitäten geschaffen.

Standort
Zeughausareal, Uster
Bauherr
Stadt Uster
Architekt
EM2N | Mathias Müller | Daniel Niggli Architekten AG | ETH | SIA | BSA
Unsere Leistungen
Baumanagement
Bausumme
CHF 45 Mio.
Fertigstellung
2028

Galerie

Werkliste