Jaeger Coneco AG Baumanagement

Emil Frey AG, Garage Zürich-Nord

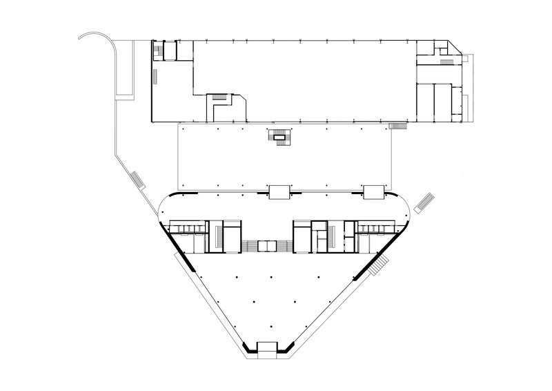
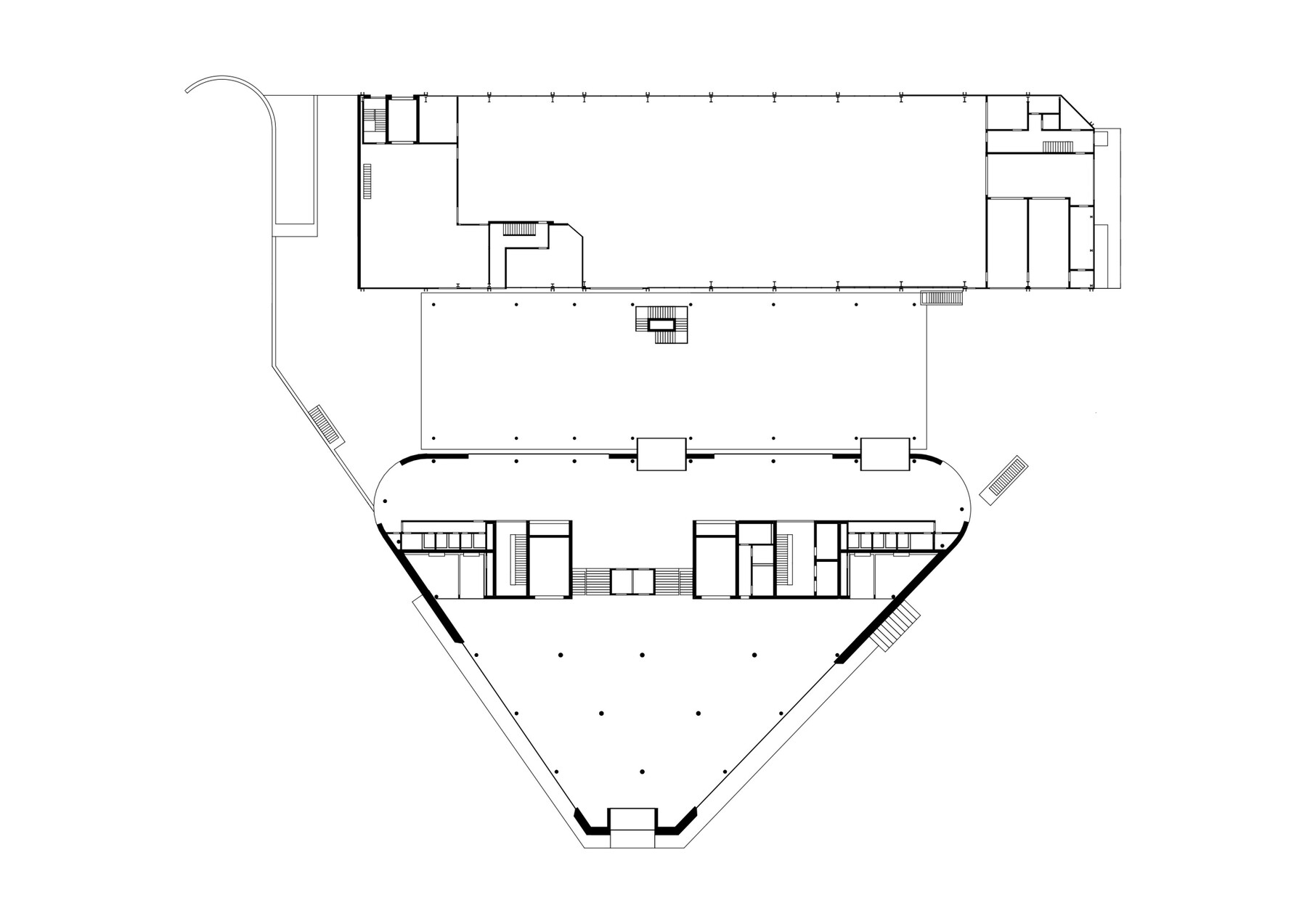
Die aus dem Jahr 1983 bekannte Garage der Emil Frey AG in Oerlikon weicht einem Neubau mit moderner Infrastruktur. Die neue Garage besticht durch ihre hochwertige Fassade und den grosszügigen Ausstellungsmöglichkeiten der Kundenfahrzeuge. Der Neubau mit drei Untergeschossen und sieben Obergeschossen bietet optimalen Platz für rund zwanzig verschiedene Automarken der Emil Frey AG.

Parallel zum Neubau musste der Betrieb der grossen Werkstatt aufrecht erhalten werden, was hohe Anforderungen an Logistik, Rücksicht auf Kundenbedürfnisse und Bautechnik stellte. Das Projekt befindet sich in sehr zentraler Lage, die Platzverhältnisse sind beschränkt und die Verkehrslage mit dem ÖV hoch frequentiert. Die Rohbauphase 1 endete im Mai 2022, die Rohbauphase 2 dauert noch an, während der Innenausbau bereit in vollem Gange ist.

Standort
Thurgauerstrasse 35, Zürich
Bauherr
Kalono Immobilien AG, Safenwil
Architekt
AMZ Architekten AG, Zürich
Unsere Leistungen
Terminplanung und örtliche Bauleitung
Fertigstellung
2024

Galerie

Projekt-
Übersicht